
Quantity Takeoff
Bid-ready quantity takeoffs that are consistent, reviewable, and delivered in formats estimators actually use. Zeconic provides division-level takeoffs with clear assumptions, marked plans, and exportable spreadsheets that support confident pricing and procurement.
- Division-level takeoffs aligned to specs and scope
- Excel-based outputs + marked plan sets for verification
- Addenda-aware updates (when provided)
- Procurement-friendly summaries for ordering and buyout
GET A FREE QUOTE!
Tell us about your project—our team will respond ASAP.
No spam. We'll respond within 1 business day.
What you get
- Division-level takeoffs aligned to specs and scope
- Excel-based outputs + marked plan sets for verification
- Addenda-aware updates (when provided)
- Procurement-friendly summaries for ordering and buyout
Deliverables
- Takeoff spreadsheet (XLSX/CSV) by division/trade
- Marked plan set (PDF) showing takeoff coverage and areas
- Summary sheet for bid/pricing (major materials + alternates if provided)
- Notes/assumptions + inclusions/exclusions page
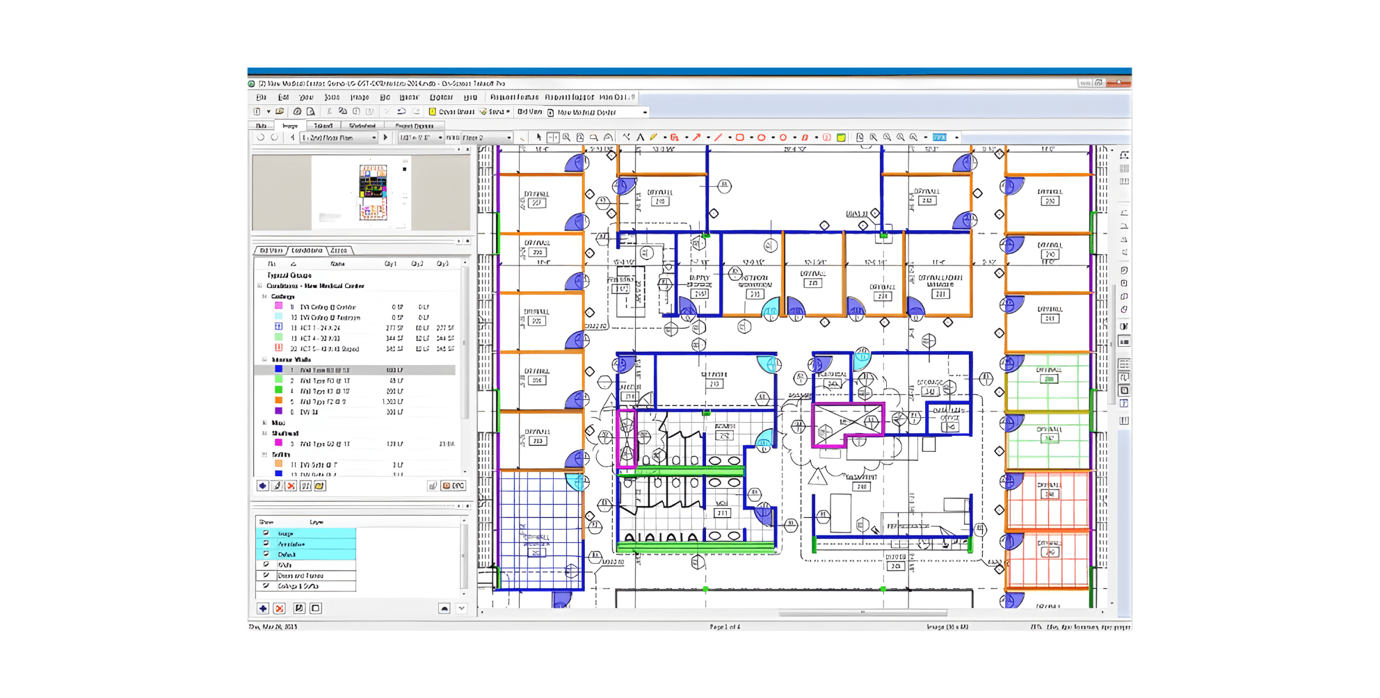
Sample Deliverables
PreviewPreviews shown for illustration purposes. Actual deliverables customized to your project.
How we work
- 1Confirm bid date, scope boundaries, divisions needed, and deliverable format.
- 2Produce takeoffs with reviewable markups and organized output structure.
- 3Deliver bid-ready package and support quick clarifications before pricing.
What we need from you
Tools & Standards
Software & Tools
Methodology
Typical Turnaround
Typical turnaround depends on project size and division scope; we confirm timeline after reviewing drawings.
Best for: Contractors and estimators preparing bids, buyout, or procurement planning.
CSI division coverage includes Div 2, 3, 4, 5, 6, 7, 8, 9, 10, 12, 15, 16.
